Perpustakaan Kontemporer: Bukan Sekadar Buku, tapi Pusat Keunggulan Akademik
Kategori: Eksterior Lembaga Pendidikan | Lokasi: Yogyakarta | Desain oleh: TriApoint Studio
KONSEP DESAIN
ZONA FASAD DAN PINTU MASUK
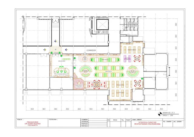
AREA PELAYANAN DAN LOBBY
Lobby perpustakaan dirancang sebagai area transisi yang menyambut pengunjung dengan nuansa profesional dan akademis. Meja resepsionis berbentuk geometris dengan finishing kayu light tone menciptakan harmoni dengan keseluruhan skema warna. Area tunggu dilengkapi dengan bench ergonomis yang mengkombinasikan material upholstery berbahan ramah lingkungan dalam nuansa krem-beige. Elemen dekoratif berupa tanaman indoor dalam pot minimalis memperkaya estetika ruang sekaligus meningkatkan kualitas udara.
AREA BACA
Area Baca Kolektif
Area baca kolektif menampilkan pendekatan desain yang mengutamakan kolaborasi dan interaksi akademis. Furnitur modular dengan sistem workstation terintegrasi memfasilitasi kebutuhan pengguna untuk bekerja secara berkelompok maupun individual. Penggunaan material upholstery dalam palet warna cerah (kuning pastel dan hijau mint) menjadi aksen yang menyegarkan di antara dominasi warna netral pada elemen struktural ruangan. Karpet area dengan pemilihan warna burgundy menciptakan zonasi visual yang jelas.
Visual Area Baca
Konsep visual area baca dirancang dengan pendekatan ergonomis dan estetis. Sofa semi-circular dengan integrated bookshelf memberikan area baca yang nyaman sekaligus fungsional. Penempatan strategis furnitur menciptakan sightline yang optimal untuk pengawasan dan orientasi pengguna. Pencahayaan ambient dari jendela tinggi dikombinasikan dengan task lighting menciptakan lingkungan yang ideal untuk aktivitas membaca.
Area Baca Individual & Koleksi Digital
Area ini mengintegrasikan teknologi informasi dengan kebutuhan privasi dalam belajar. Workstation dengan partisi modular memberikan tingkat privasi yang cukup tanpa menimbulkan kesan isolasi. Akses terminal komputer untuk penelusuran koleksi digital dirancang dengan mempertimbangkan aspek ergonomis dan teknologi terkini. Penggunaan kursi dengan desain ergonomis warna merah menjadi focal point yang dinamis di area ini.
ELEMEN DESAIN
Skema Warna
Palet warna panel dinding yang diimplementasikan didominasi oleh:
- Beige dan krem sebagai warna dasar yang menciptakan kesan luas dan bersih
- Aksen dinding terracotta yang memberikan kehangatan visual
- Elemen kayu light tone untuk menyeimbangkan kesan institusional
- Sentuhan warna aksen (hijau mint, kuning pastel, dan merah) untuk menciptakan dinamika visual
Pencahayaan
Sistem pencahayaan menerapkan konsep layering dengan kombinasi:
- General lighting berupa lampu fluorescent dengan diffuser untuk pencahayaan merata
- Task lighting pada area baca dan meja kerja
- Accent lighting untuk menonjolkan elemen arsitektural dan signage
- Natural lighting yang dioptimalkan melalui jendela dengan vertical blind untuk kontrol cahaya
Material
Pemilihan material menekankan pada durabilitas, pemeliharaan rendah, dan nilai estetika:
- Lantai menggunakan kombinasi homogeneous tile untuk area sirkulasi dan karpet pada area baca
- Dinding finishing cat low VOC dengan aksen panel kayu pada area tertentu
- Furnitur berbahan dasar multipleks dengan finishing HPL dan upholstery berbahan ramah lingkungan
FITUR KHUSUS
Perpustakaan dilengkapi dengan fitur modern yang mendukung kegiatan akademis tingkat pascasarjana:
- Sistem OPAC (Online Public Access Catalog) terintegrasi
- Area "Lesehan Corner" untuk mendukung diskusi informal dan kolaborasi
- Zona koleksi khusus yang menyajikan literatur spesifik bidang keilmuan pascasarjana
- Sistem pengaturan suhu dan kelembaban yang optimal untuk preservasi koleksi
- Aksesibilitas universal dengan mempertimbangkan kebutuhan seluruh pengguna
KESIMPULAN
Keseluruhan desain menghadirkan keseimbangan harmonis antara ruang kolaboratif dan area privat yang mendukung beragam gaya belajar dan penelitian. Pemilihan skema warna netral dengan aksen terracotta dan sentuhan warna-warna segar menciptakan suasana yang profesional namun tetap dinamis. Penggunaan material berkualitas tinggi dan sistem pencahayaan yang terintegrasi menjamin kenyamanan penggunaan jangka panjang.
Perpustakaan ini tidak hanya berfungsi sebagai repositori pengetahuan, tetapi juga sebagai ruang interaktif yang memfasilitasi pertukaran ide dan kolaborasi akademis. Dengan memadukan elemen-elemen desain yang mengedepankan ergonomi, teknologi, dan estetika, Perpustakaan Pascasarjana UIN Sunan Kalijaga Yogyakarta menjadi kebanggaan institusi yang merepresentasikan komitmennya terhadap keunggulan pendidikan dan penelitian tingkat lanjut.










Komentar
Posting Komentar